UPDATED 2nd October 2024
An Interesting job we’ve been working on based in Rayleigh Essex involving :
- Removal of an existing boiler out-building
- Creation of a rear extension
- Infilling a recessed patio area at side over which the original roof oversails
- Many internal room changes and alterations including formation of a study and additional ensuite and WC
- Re-setting falls to existing garage roof
The client approached us to assist him making the best use of the existing space whilst at the same time utilising the space beneath the roof which overhung and recessed patio area at the side.
The client also explained that the property resided on a fairly large plot and it was his intention to extend to the rear as the resultant rear garden area could still be regarded as above average sized despite a rear extension.
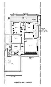
Here is the as-existing drawing for you to get a feel for the existing space :
Explanation of the above :
There is some pixellation with the screen grab here, but for avoidance of doubt, the area shown at the rear which at first glance looks a bit like an extension is actually a raised patio area walled in with high and substantial retaining walls.
The rectangle to the top right , placed right against the boundary fence is the boiler outbuilding and just beneath this is the side patio position which is covered over by an overhang of the main roof.
The process that followed : …
We then worked closely with the client who was quite knowledgeble as a client as he worked on building projects himself and already had some good ideas.
We went through several drafts and re-hashes at concept stage to find a workable solution that we felt would have a reasonable chance of planning success.
The key was to bear in mind at design stage the potential impact that the extension work might have on neighbouring property owners and design accordingly.
Essentially what we ended up with was a net win for the right hand neighbour as the removal of the existing outbuilding opened up the gap between the two properties as the outbuilding was right up against the boundary fence allowing a significant amount of more light through into the neighbours garden and generally creating more of an open less crowded feel amoungst the nearby properties.
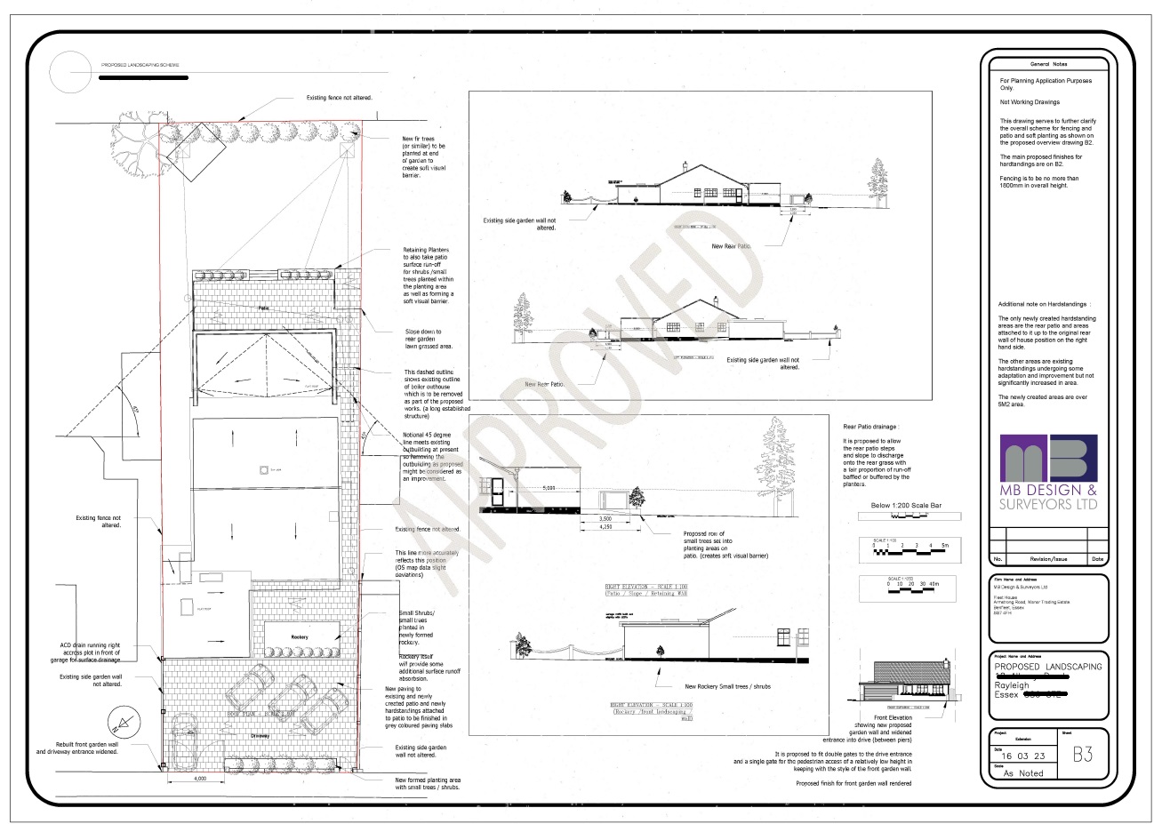
As can be seen below the planning application was approved…..
We produced a landscape plan and elevations as the new paved area was substantial as part of the application.
Here is a larger screen grab of the plan layout part of the approved planning drawings :
As you can see here, we splayed the hallway walls to create more openness to the hallway and incorporated a natural light light pipe as part of the design in order to avoid the situation which in its original state the bungalow faced which was essentially having a dark tunnel in a sense for the hallway which is not desireable.
The client expressed that his partner held some feng shui beliefs that there had to be a slight offset to the hallway to prevent positive energies from flowing diectly out of the rear of the property, so we accomodated this within the design.
Having got the design through planning what next? …
The client commissioned us to produce building regulations plans for the next stage.
This situation was somewhat unique in that the client worked with the builder on a day to day basis and there were time constraints such that they could not justify a delay in waiting for a full plans submission to be approved before building due to other customer commitments they had made.
Some draft building regulations stage plans were drawn up to discuss at a meeting to ensure that we were not specifying methodology that the builder was not familiar with or typically preferred.
The meeting went well in the sense that we seemed to be singing off the same hymm – sheet in terms of materials and methodology that we had calculated would be compliant.
A large dictating factor as to the construction were the need to comply with the recently updated u value requirements and this was calculated and factored into the design.
Having chatted through the draft building regulations drawings, a discussion regarding timescales took place and after some discussion the client decided to allow us to get the building regulations drawings up to a stage whereby they could present them to the structural engineer for calcs and sufficiently detailed to act as a means of discussion with building control on site so that they could potentially have the matter dealt with under a building control building notice.
We duly did so and a screen grab of the drawings we produced are below : …
This included 2 sections one through the garage and one through the ensuite contained within the garage.
We would say at this stage our normal advice is to ideally where possible do a full plans submission and await formal approval of the plans prior to embarking upon any work, however this was a unique circumstance and the client had his own reasons for progressing on a notice.
At least this way, the key compliance areas could be discussed on site with the checking officer with a decent set of drawings in hand and the experience of the client and his knowledge of construction and the industry , regulations etc. in this case made it a viable proposition.
The work has started on site and is progressing well and the builder has had regular timely inspections with building control to ensure that the project does not run away with itself, and my understanding from talking with the builder is that building control have been helpful and thorough in their approach in this case.
I took a couple of photos when I popped down to site on a non official basis for a sneaky look see below : …
The outbuilding has gone now, the drainage has been done and inspected by the BCO and they are starting to build the superstructure of the extension.
The site has been kept relatively tidy which is good to see.
The client tells me that because of all the internal work and the nature of having to fit the work on his own property in between paid jobs, the whole project will be broken up into phases and might take a couple of years to fully complete because of the extent and accounting for the nearing winter weather.
The idea is that they will focus on the extension first, so hopefully I will able to update this blog with more exciting more finished photos fairly soon, which is good as its always nice to see your work brought to life so to speak.
UPDATE BELOW : 2nd October 2024 :
On the 2nd October we re-visited the site to see how Paul and Steve were getting on with the build.
Things are progressing well with the outer shells of both extensions all in place and roof covered for the main rear extension, windows are in and framework for the ensuite part (which is part of the garage) is taking shape.
All the garage steelwork is in and the garage roof has been run side to side as planned successfully and covered.
Here are some photos taken on the day :
Above : Outer shell of Art Deco Style rear extension and the rear raised patio starting to take shape.
The Client has gone for a nod to the traditional using modern Crittal double glazed units (powder coated aluminium) in smart Charcoal.
Eventually the entire extension will be rendered and white coloured with a smart black or dark charcoal capping piece for the parapet to complete the look.
3/4 shot looking down the side and a glimpse of the Client’s new solar PV array to the main bungalow roof.
Looking into the side infill extension position which llooks like a narrow passageway now, but will be opened up soon to create the study and part of kitchen as shown int he drawings.
Good attention to detail, the joist ends have been dpc wrapped at the ends.
The ensuite formed from part of the garage, nicely placed and formed steelwork.
Insulation in place for the extension floors
Good attention to detail, foil taped gaps like would be done for a new build subjected to an air permeability test.
DPC under sole plate of ensuite framework , like it should be.
Central solid strutting for the large garage roof.
For the fencing , the client went for these new innovative type of slotted fencing posts known as duraposts that are easier to line up than traditional heavy concrete posts and are supposed to survive 75MPH winds.
Here is a closer shot of the fencing posts.
My take away from this visit was that the level of quality of the build so far from the builder (S Huggins) is extremely good in terms of workmanship and attention to detail.
I also gained the impression that the work has been carried out methodically and in the correct order of working.
The structural engineers (Crucis Designs) have done a good job in the steel arrangement and pad foundation in the garage and the builder has managed to place them properly and effectively without the placement looking struggled , which is commendable as placing/fixing of steelwork is never an easy job , so hats off there. Everything looks level, square and well fixed.
The building control department of Rochford Council also deserve a mention, as the Client informed me that they have been practical, approachable and helpful on the job as well as of course having to do their usual due dilligence we expect them to do, so this is good to hear.
I hope to bring you another update soon, once the Client and Builder have done a bit more, but for now, keep up the good work guy’s.
Anyway, hope you found this interesting and thanks for reading.
Kindest regards
Mike Brebner MCIOB of MB Design and Surveyors Ltd
Office : 01268 856154






















